- Coldroom Hinged Door With Pu Panel For Freezer Room
Cold Room Door Factory Direct Supply Cold Room Freezer Sliding Door
- Get A Quote
- Description
- Features
Negative Cold Chamber Hinged Door
Product Introduction
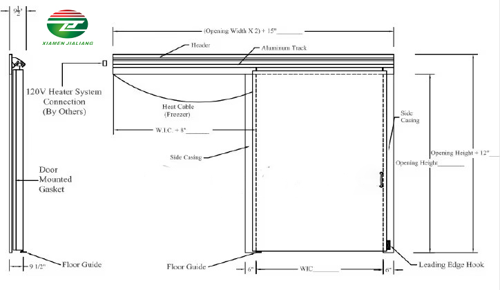
Manual Sliding Door
Manual sliding door, beautifully made, has the characteristics of sealing, good heat insulation and long service life.
At the same time, it has a safety device for escape in the warehouse, which is safe and practical; it is characterized by a door body that can withstand a large weight.
Swing Door
Standard dimensions:
80x180 cm 100x180 cm 120x200 cm
Benefits:
* Minimized thickness
* Esthetical and durable design
* Flat design, excellent fitness
* Hybrid frame which blocks heat transfer
* Perfect insulation, 10 cm door frame thickness
Product Details
Swing door normal 10cm thickness walk in refrigeration unit freezer room door hinge and lock customized cold room door
| Item | Detailed Description |
| Product Name | Cold Room Door |
| Brand Name | Xiamen Jialiang |
| Surface Material | Color Steel or Stainless Steel |
| Door Panel Thickness | 100mm/120/150mm |
| Cold Room Door Opening Direction | Left Opening or Right Opening |
| Safety Design | Emergency Escape Lock |
| Way of Control | Manual Opening or Electric Control |
| Usage | Cold Storage |
| Temperature | -45℃—+50℃ |
| Customized Service | Customizable according to the door opening size |
Product Display
Customizable Cold Room Door: This product offers a swing door design with a thickness of 10cm, suitable for walk-in refrigeration units, and can be customized to meet specific needs.
Wide Temperature Range: The door operates effectively within a temperature range of -25°C to +15°C, making it ideal for various cold storage applications, including food & beverage factories, restaurants, and food shops.
Easy to Operate: The product features an easy-to-operate design, allowing users to easily access and manage their cold storage spaces.
Durable Construction: The door is made of color steel and has a thickness of 100mm/150mm, ensuring durability and long-lasting performance.
Complete Package: The product comes with 1 lock and 2 hinge pieces, providing a complete package for users to assemble and install the cold room door.
Factory Workshop
Jialiang is a Xiamen, China headquartered high growth cold chain company that designs, installs, and commissions refrigeration solutions for industrial and commercial clients. Jialiang has 25 years experience in the cold room market. With an end-to-end,turnkey solution, customers can easily implement Jialiang's refrigeration and cold room solutions into their business processes.
Whether you are looking for cold room, refrigeration condensing units, insulation panels, evaporator air coolers.
Jialiang is the go-to professional manufacturer. True to our brand promise, at "Jialiang- we make sure you are cool". Jialiang prides itself on having excellent technical professionals. This includes licensed architects, highly trained factory staff, research and development experts, and technical sales and support teams. We serve both local and global customers from the US,Canada, South Asia among other regions. You are welcome to have a chat with our technical sales team if you want to make any
inquiries or purchases.
The cold room panel material can choose stainless steel, color steeplate, as the panel, and the polyurethanefoam is used as the insulation material.
The materials can be divided into environmentally friendly flame retardantB1,B2, combined with advanced productiontechnology to make composite cold storage panels , lts light weight, highstrength, good thermal insulation performance, anti-aging mothproof, non-toxic, non-mold, use at low temperatures can show its su-periority.
FAQ
| Q1: How do you guarantee quality? |
| A1: Our products if do a good job of daily maintenance and dust removal. Regular maintenance, correct operation will not have any problems The shelf life of our products is one year (in the case of not being considered damaged) |
| Q2: How can you install cold room door? |
| A2: We will send layout diagrams and English installation videos, and have a dedicated after-sales group that can provide remote guidance for you. |






















